︎
Thomas Cusack Keane
Information
Email
Instagram
Tumblr
︎︎︎Index
Next ︎︎︎
Thomas Cusack Keane
Work︎︎︎
718 Rainier Ave
Kitsap House
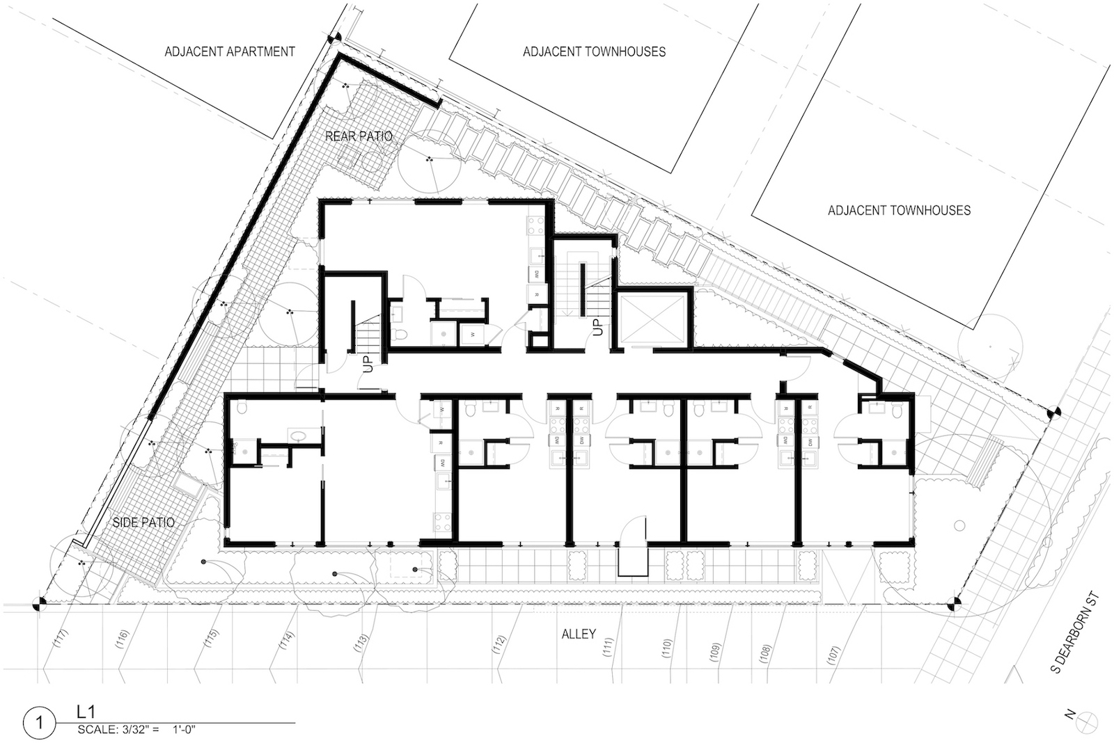
Dearborn Apartments
Tangletown
Students of the Highwire
Museum of Wildfire
Villa Maderni Exhibition
Sheds
Chairs
Diary︎︎︎
New Here
920 5th Ave
Dirtquake
Follies
To Palouse
Information
Email
Instagram
Tumblr
A four story, 10,400 square foot apartment building situated on a challenging and compact triangular site. Brought from programming through design development while working at
Bushnaq Studio
.
Seattle, WA
2018